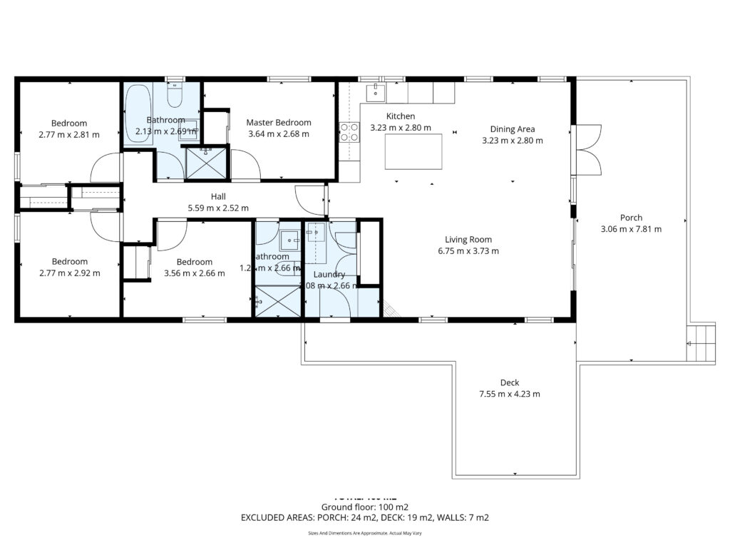
Considering getting floor plans for holiday accommodation produced? Here are two options – 2D schematic floor plan and a 3D enhanced colour floor plan. Estate agents use the 2D versions as they’re practical, but if you need a floor plan for a holiday let, holiday home, holiday accommodation or lodge, then the 3D enhanced colour floor plan provides much more value to your potential guests.
Use the orange scroll control at the bottom to swop between to the two versions
Are Your Floor Plans Selling Your Dream Stay… Or Just Showing a Layout?
As an owner or marketing director in the competitive holiday accommodation market – be it a bustling holiday village, an exclusive lodge, or a cozy holiday let – you know the power of a first impression. Guests are looking for an experience, a home-away-from-home, a place where memories are made. Yet, many still rely on the same old 2D schematic floor plans that estate agents use.
Let’s be honest: while functional, those black-and-white lines and bare dimensions aren’t exactly “bringing the accommodation to life,” are they? They’re a map, not an invitation.
But what if you could offer your potential guests a glimpse into their dream holiday before they even arrive? This is where 3D colour floor plans for holiday accommodation become your ultimate marketing tool.
The Problem with 2D: Flat, Uninspiring, and Hard to Visualise
Traditional 2D floor plans are great for architects and surveyors. They provide precise measurements and an aerial view. However, for a guest dreaming of their next getaway, they present several challenges:
- Lack of Emotion: They’re sterile and don’t evoke any feeling of warmth or comfort.
- Difficult to Visualise: Not everyone can translate lines and boxes into a furnished, livable space. How big is that sofa? Where does the light fall?
- Missed Opportunities: They fail to highlight unique features, flow, or the true spaciousness of your property. They don’t show the story of a stay.
Enter the World of 3D Colour: Bringing Your Holiday Home to Life
Imagine your holiday accommodation rendered with vibrant colors, textures, and subtle shadows. That’s the magic of 3D colour floor plans. They don’t just show a layout; they create an immersive preview, allowing guests to:
- Experience Flow & Functionality: Guests can instantly grasp the relationship between rooms. Is the kitchen open to the living area? How far is the bedroom from the bathroom? They can mentally walk through the space, picturing their family relaxing.
- Visualise Furnishings & Space: By depicting furniture, appliances, and even outdoor patios in realistic detail, 3D plans convey scale and ambience. Guests can see where they’ll put their suitcases, where the kids will play, or where they’ll enjoy that morning coffee.
- Highlight Key Features: Does your lodge boast a stunning open-plan kitchen, a cozy fireplace, or an ensuite in every bedroom? 3D plans make these selling points pop, drawing the eye to the very features that differentiate your property.
- Evoke Emotion & Desire: Colour and texture add warmth and personality. A bright, airy living room with a strategically placed armchair suddenly feels inviting. It’s no longer just a room; it’s their potential holiday haven.
- Reduce Enquiries & Build Confidence: When guests have a clear, realistic understanding of the layout, they ask fewer questions about suitability. This builds confidence, reduces pre-booking friction, and leads to more decisive bookings.
More Than Just an Image: A Powerful Conversion Tool
In the digital age, stunning visuals are paramount. A 3D colour floor plan isn’t just a nice-to-have; it’s a strategic asset:
- Enhanced Online Listings: Stand out on booking platforms and your own website.
- Social Media Engagement: Share visually appealing content that gets noticed and shared.
- Improved Conversion Rates: Help potential guests commit by giving them a clearer, more engaging picture of their stay.
Don’t Just List Your Accommodation. Showcase It.
Your holiday village, lodge, or holiday let is more than just square footage and a roof. It’s the backdrop for cherished memories. Stop letting generic 2D plans undersell the unique charm and functionality of your property.
Invest in 3D colour floor plans and give your guests what they truly want: a vibrant, immersive preview that brings their dream holiday accommodation to life, and ultimately, drives more bookings for you.
Ready to transform your listings? Talk to us today about how 3D colour floor plans can elevate your marketing strategy.



0 Comments Leave a comment